Ladenfläche in 1A-Lage der Burghauser Altstadt

84489 Burghausen

84489 Burghausen, Ladenlokal zum Kauf

Kontaktdaten

Objektdaten

  • Objekt-ID
    2026-101
  • Objekttypen
    Einzelhandel, Ladenlokal
  • Adresse
    84489 Burghausen
  • Lage
    1a
  • Nutzfläche ca.
    205 m²
  • Verkaufsfläche ca.
    150 m²
  • Heizungsart
    Zentralheizung
  • Wesentlicher Energieträger
    Öl
  • Baujahr
    1984
  • Käufer­provision
    3,57 % inkl. MwSt. Käuferprovision
  • Mieteinnahmen (Ist)
    14.640 EUR pro Jahr
  • Kaufpreis
    276.000 EUR

Ausstattung / Merkmale

  • ✓ Denkmalgeschützt
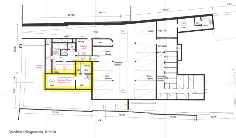
  • ✓ Keller
  • ✓ Parkettboden

Energieausweis

  • Energieausweistyp
    Verbrauchs­ausweis
  • Ausstellungsdatum
    18.11.2018
  • Gültig bis
    02.11.2028
  • Gebäudeart
    Nichtwohngebäude
  • Baujahr
    1984
  • Primärenergieträger
    Öl
  • Endenergie­verbrauch Wärme
    83,40 kWh/(m²·a)
0 25 50 75 100 125 150 175 200 225 250+ H G F E D C B A A+ H G F E D C B A A+ Endenergieverbrauch Wärme 83,40 kWh/(m²·a)

Objekt­beschreibung

Dieses attraktive Ladengeschäft befindet sich in bester Lage am Burghauser Altstadtplatz und wurde im Jahr 1984 unter Berücksichtigung des Denkmalschutzes neu gebaut. Das Objekt verbindet den historischen Charakter der Altstadt mit einer funktionalen und zeitlosen Bauweise.

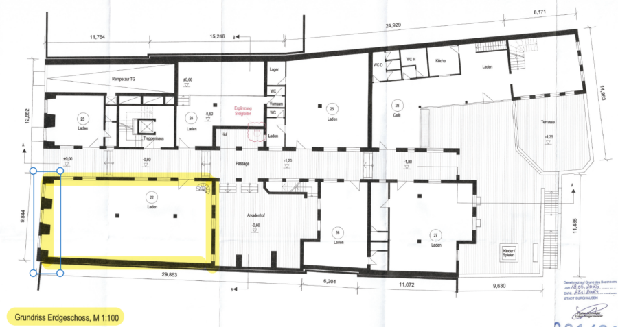
Die Gesamtfläche beträgt ca. 205 m², wovon rund 55 m² als Lagerfläche genutzt werden. Die verbleibende Fläche eignet sich ideal als Verkaufs-, Ausstellungs- oder Dienstleistungsfläche. Hochwertiger Parkettboden sorgt für ein angenehmes Raumgefühl und unterstreicht den repräsentativen Charakter der Einheit. Ergänzt wird die Ausstattung durch einen Schwedenofen, der zusätzlich zur Öl-Zentralheizung für Wärme sorgt.

Die Immobilie ist derzeit gut vermietet (Rendite > 5 %) und stellt somit auch eine interessante Möglichkeit für Kapitalanleger dar.

Durch die Kombination aus historisch geprägtem Umfeld, hochwertiger Ausstattung und der erstklassigen Lage am Stadtplatz bietet dieses Objekt eine seltene Gelegenheit im Herzen von Burghausen.

Wenn wir Ihr Interesse geweckt haben, würden wir uns freuen, Ihnen dieses traumhafte Objekt bei einer persönlichen Besichtigung vorstellen zu dürfen.

Bitte bei Anfragen die vollständige Adresse und Telefonnummer angeben.

Alle genannten Angaben zum Objekt beruhen auf Informationen des Eigentümers, für deren Richtigkeit wir keine Gewähr übernehmen.

Weitere aktuelle Immobilienangebote finden Sie auf unserer Homepage unter:

https://www.immobilien-stoelzl.de

Lage

Burghausen bietet beste Einkaufsmöglichkeiten, ein attraktives Umfeld, kulturelle Veranstaltungen, jegliche Möglichkeiten der Freizeitgestaltung, Gastronomie, Freibad, Ärzteschaft, Klinik, Schulen, weiterführende Schulen, Campus der TH Rosenheim und vieles mehr. Burghausen ist Technologie- und Wirtschaftsstandort.
Besonders zu erwähnen ist die historische Altstadt mit der Burganlage und dem Wöhrsee, dem Badesee der Stadt.
Von hier gelangt man schnell ins Salzburger Land mit seinen zahlreichen Seen und Bergen. Salzburg ist 40 km und München 100 km entfernt. Man erreicht die Hauptstadt über die A94 in kürzester Zeit.

Direktanfrage

Sie erhalten nach dieser Anfrage eine E-Mail mit weiteren Informationen und den rechtlichen Hinweisen.

* Pflichtangaben
 SSL-verschlüsselt
Immobiliendaten-Import und Darstellung für WordPress: WP-ImmoMakler